グランフォーレ宮浦 201 Aタイプ
賃料
7.3万円
管理費(共益費)
3000円
敷金
1ヶ月
礼金
無し
保証金
無し
更新料
22000円
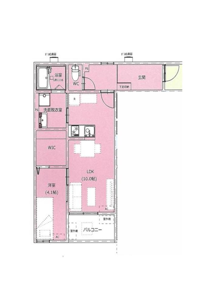
間取
1LDK
階数
3階建の2階部分
所在地
〒723-0051 広島県三原市宮浦3丁目19-3
交通
三原駅から徒歩20分
管理会社
マコト不動産
駐車場(月額)
5000円/台
保険加入義務
有
保険期間・保険料
期間 2年 保険料 18000円(全管協少額短期保険(株))
家賃保証
※加入要(日本セーフティー株式会社)
鍵交換代
円
専有面積
39.33㎡
建物構造
木造
新築(築1年未満の未使用物件)
間取備考
洋室4.1帖、LDK10帖
現況
空室
引渡
以降 2026年4月下旬以降
取引態様
媒介(仲介)
賃貸期間
2年
ペット
不可
水道・排水・ガス
公営水道 プロパンガス
キッチン
ガスコンロ設置済 2口
洗濯機置場
あり(室内)
エアコン・照明
エアコン二台付
バス
専用 浴室乾燥機
トイレ
専用 温水洗浄便座
収納
クローゼット シューズボックス
セキュリティ
防犯カメラ オートロック TVドアホン
テレビ・インターネット
無料インターネット付
駐輪場・物置
自転車置場
その他
新着 おすすめ 宅配ボックス 閑静住宅街











